Objektreferenz: 1020/1130/80
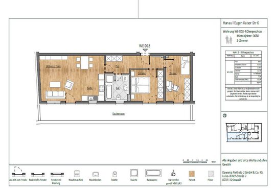
Die schöne 3-Zimmer-Wohnung befindet sich im 4. Obergeschoss eines gepflegten Mehrfamilienhauses.
- Wohnfläche ca. : 88 m2
- Kaltmiete: 1.063,00 €
- Betriebskosten: 155,00 €
- Heizkosten: 177,00 €
- Gesamtmiete: 1.395,00 €
- Kaution: 3.189,00 €
- Baujahr: 2020
- Geschoss: 4
- Wohnungstyp: Dachgeschoss
- Bezugstermin: 01.02.2026
- Zustand: Neuwertig
- Energieausweistyp: Bedarf
- Heizungsart: Zentral
- Energiekennwert: 51kWh/(m²*a)
- Energieträger: Gas
- Effizienzklasse: B
- Badezimmer: 1
- Schlafzimmer: 2
- Aufzug
- Anzahl Balkon / Terrasse: 0 / 1
- Einbauküche
- Waschmaschinenanschluss
- Keller
- Rolladen
- Gegensprechanlage: VIDEO
- Dusche
- Badewanne
- Badezimmerfenster
- Fußboden: PARKETT
- Objekt-Nr: 1020/1130/80